




Tegund | Staurabox |
Gerð | EKM-2050-3D1 |
Málspenna | 400 V |
Málstraumur | 16 A |
Minnsta innanmál staurs | 89 mm |
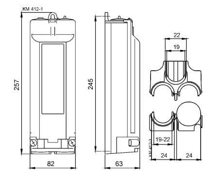
Hurðastærð | 85x270 mm |
Varbúnaður | 3xD01 (E14) |
Tengiklemmur | 5 |
Strengir að 1 | 3-5x2,5-16/3-4x2,5-25 mm² |
Strengir að 2 | 3-5x2,5-16/3-4x2,5-25 mm² |
Strengir að 3 | 3-5x2,5-16 mm² |
Strengir að lampa (2x) | 3-5x1,5-2,5 mm² |
Túður að ofan | Ø 2x8-14 mm |
Inntök að neðan | Ø 2x19-24 mm/1x19-22 mm |
Umhverfishitastig | -25 °C - +55 °C |
Varnarflokkur | IP54 |
Stærð (LxBxH) | 257x82x63 mm |
Litur | Grár/Glær |




Tengibox með þremur varhöldum til notkunar inn í ljósastaura. Áríðandi er að frágangur allra túða og strengja séu skv. meðfylgjandi leiðbeiningum.
Athugið að hvorki vartappar né botnhringir fylgja með.